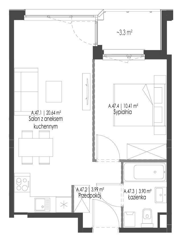
Mieszkanie A47

Bankowa 13
Mieszkanie A47 budynek A
Chojnice
4 piętro
38,94 m2 powierzchnia
2 pokoje
Cena za 1 m2:
(dotyczy mieszkania)
10 800 zł
Do odbioru: I kwartał 2028 r.
Cena mieszkania 420 552 zł

Dodatkowe koszty, jakie poniesie nabywca, zgodnie z art. 19a ust. 1 pkt 3) ustawy z dnia 21 maja 2025 roku o zmianie ustawy o ochronie praw nabywcy lokalu mieszkalnego lub domu jednorodzinnego oraz o Deweloperskim Funduszu Gwarancyjnym, obejmują:
- akty notarialne i opłaty sądowe,
- zmiany aranżacyjne/programy wykończeniowe wg indywidualnego kosztorysu,
- zarządzanie i administrowanie częściami wspólnymi w okresie przedwspólnotowym,
- koszty eksploatacji i utrzymania lokalu oraz praw związanych w okresie przedwspólnotowym.

Dodatkowo w ofercie
miejsce postojowe w hali garażowej podziemnej
60 000 zł

Jesteś zainteresowany mieszkaniem na osiedlu Bankowa 13

Wypełnij formularz, a my odezwiemy się z ofertą!

    Napisz do nas