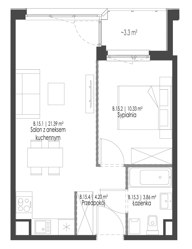
Mieszkanie B15

Bankowa 13
Mieszkanie B15 budynek B
Chojnice
2 piętro
39,78 m2 powierzchnia
2 pokoje
Cena za 1 m2:
(dotyczy mieszkania)
12 420 zł
Do odbioru: II kwartał 2028 r.
Cena mieszkania 494 068 zł

Dodatkowe koszty, jakie poniesie nabywca, zgodnie z art. 19a ust. 1 pkt 3) ustawy z dnia 21 maja 2025 roku o zmianie ustawy o ochronie praw nabywcy lokalu mieszkalnego lub domu jednorodzinnego oraz o Deweloperskim Funduszu Gwarancyjnym, obejmują:
- akty notarialne i opłaty sądowe,
- zmiany aranżacyjne/programy wykończeniowe wg indywidualnego kosztorysu,
- zarządzanie i administrowanie częściami wspólnymi w okresie przedwspólnotowym,
- koszty eksploatacji i utrzymania lokalu oraz praw związanych w okresie przedwspólnotowym.

Dodatkowo w ofercie
miejsce postojowe w hali garażowej podziemnej
60 000 zł

Jesteś zainteresowany mieszkaniem na osiedlu Bankowa 13

Wypełnij formularz, a my odezwiemy się z ofertą!

    Napisz do nas