
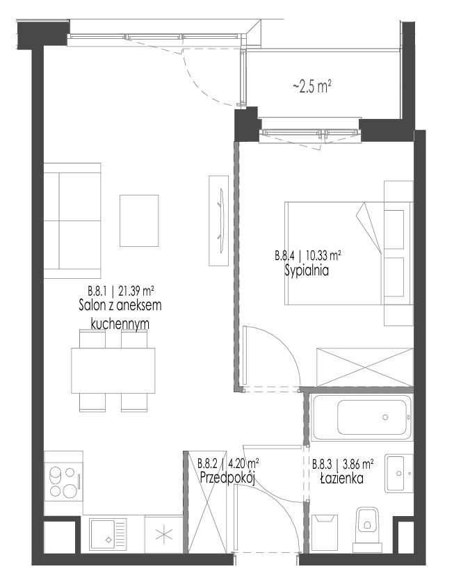
Mieszkanie B8
budynek B
Chojnice
1
piętro
39,78 m2
powierzchnia
2
pokoje
Do odbioru: II kwartał 2028 r.
Dodatkowe koszty, jakie poniesie nabywca, zgodnie z art. 19a ust. 1 pkt 3) ustawy z dnia 21 maja 2025 roku o zmianie ustawy o ochronie praw nabywcy lokalu mieszkalnego lub domu jednorodzinnego oraz o Deweloperskim Funduszu Gwarancyjnym, obejmują:
- akty notarialne i opłaty sądowe,
- zmiany aranżacyjne/programy wykończeniowe wg indywidualnego kosztorysu,
- zarządzanie i administrowanie częściami wspólnymi w okresie przedwspólnotowym,
- koszty eksploatacji i utrzymania lokalu oraz praw związanych w okresie przedwspólnotowym.

Dodatkowo w ofercie
miejsce postojowe w hali garażowej podziemnej
60 000 zł
Skontaktuj się z naszym biurem sprzedaży
sprzedaz@pbgorski.pl


