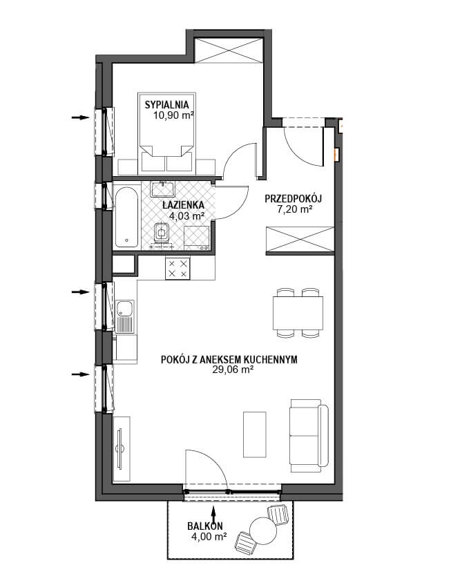
Mieszkanie D36

Osiedle Srebrniki
Mieszkanie D36 budynek 4 segment 8
Gdańsk
1 piętro
51.18 m2 powierzchnia
2 pokoje
Cena za 1 m2:
(dotyczy mieszkania)
15 300 zł
Komórka lokatorska:
(Powierzchnia: 4.09 m2)
18 405 zł
Do odbioru: Gotowe
Cena mieszkania 783 054 zł

Dodatkowe koszty, jakie poniesie nabywca, zgodnie z art. 19a ust. 1 pkt 3) ustawy z dnia 21 maja 2025 roku o zmianie ustawy o ochronie praw nabywcy lokalu mieszkalnego lub domu jednorodzinnego oraz o Deweloperskim Funduszu Gwarancyjnym, obejmują:
- akty notarialne i opłaty sądowe,
- zmiany aranżacyjne/programy wykończeniowe wg indywidualnego kosztorysu,
- zarządzanie i administrowanie częściami wspólnymi w okresie przedwspólnotowym,
- koszty eksploatacji i utrzymania lokalu oraz praw związanych w okresie przedwspólnotowym.

Dodatkowo w ofercie
miejsce postojowe w hali garażowej podziemnej
40 000 zł
pomieszczenie gospodarcze, komórka lokatorska
4 500 zł/m2
udział w działce drogowej
1 500 zł

Jesteś zainteresowany mieszkaniem na osiedlu Osiedle Srebrniki

Wypełnij formularz, a my odezwiemy się z ofertą!

    Napisz do nas